Ringmore Road, Bramhall
Property Description
If you want easy living in SK7, this is a really good shout. Ground-floor, fresh inside, and you can honestly just move straight in- no messing about.
Property Features
- Easy walk to Bramhall Park
- Popular Shady Oak estate
- Double bedroom
- Spacious living
- Garden
- Garage
- No vendor chain
- Perfect for first time buyer, downsizer or investor
Full Description
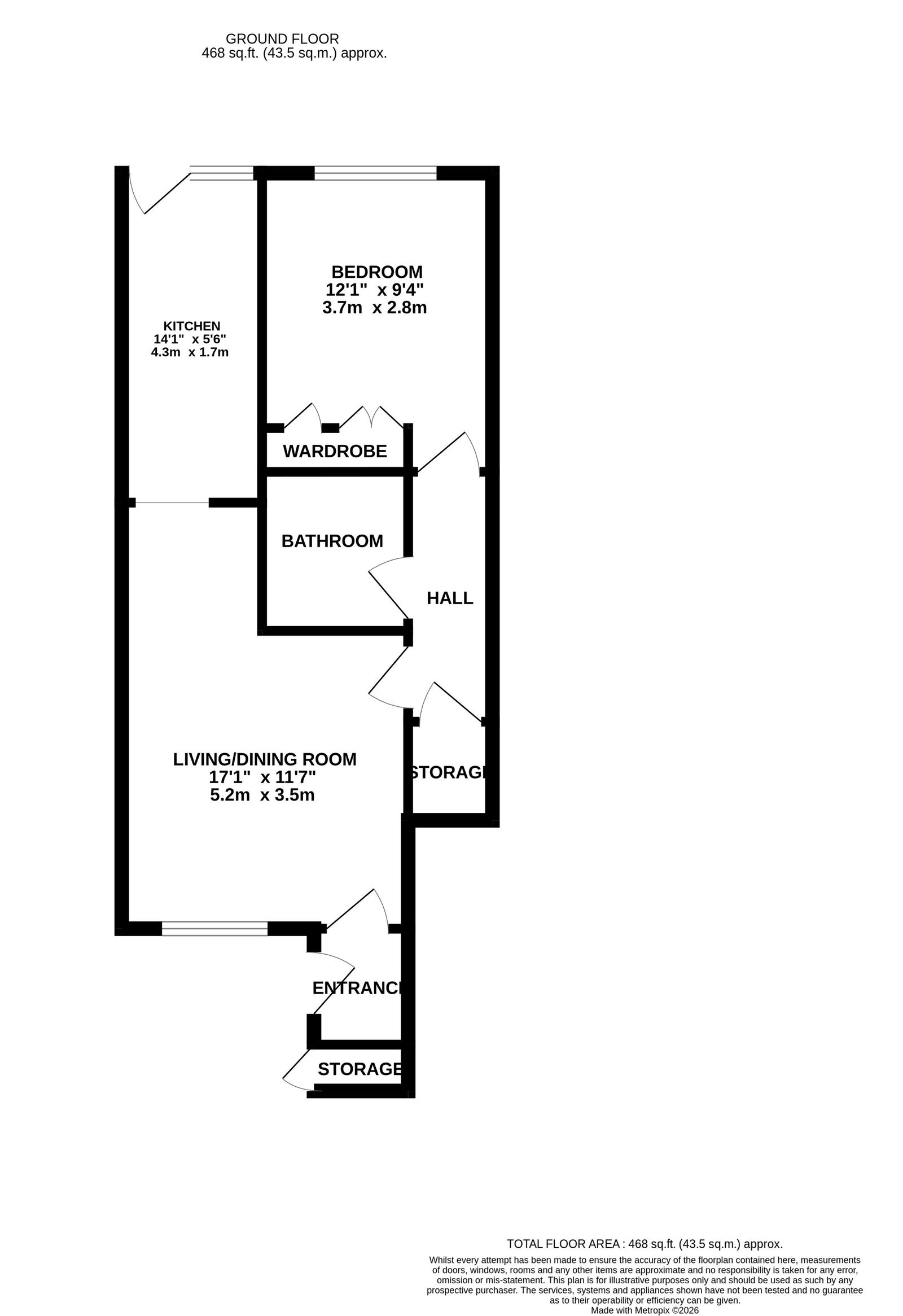
Inside it’s simple and it works. You’ve got a proper double bedroom, a bathroom, a good-sized living room that feels airy, and a kitchen that leads straight out to the garden (so in summer you’re in and out with drinks and snacks without trekking through the place). There’s also a handy storage cupboard, which you’ll be grateful for the minute you move in.
Outside, the garden is a real bonus- your own space for a brew, a bit of pottering, or just somewhere to sit in peace. And it comes with a garage too, which is great for storage, bikes, or keeping the car out of the way.
Location-wise it’s spot on. Bramhall Park is an easy walk, and you’re right between Bramhall, Hazel Grove, Davenport and Woodsmoor, so getting anywhere is easy- shops, trains, cafés, all close by.
In short: a fresh, airy ground-floor flat with a proper double bedroom, good-sized living room, kitchen out to a private rear garden, handy storage, and a garage- chain-free, and in a great SK7 spot near Bramhall Park. First-time buyer, downsizer, investor- this one just works. Come and have a look.
PART A
Council Tax :
Tenure: Leasehold
PART B
Property Type & Construction – Brick
Electric and Water Supply – Mains
Heating – Gas central
Sewerage – Mains
Broadband – Ultrafast
Mobile Coverage – 4G
Parking – Garage
PART C
Building Safety –
Restrictions – TBC
Rights & Easements – TBC
Flooded: No
Flood Risk Rivers & Sea: No
Flood Risk Surface Water: No
Coastal Erosion Risk: No
Planning Permission:
Accessibility / Adaptions:
Coalfield or Mining area: No
Energy Rating – D
We are required by law to conduct anti-money laundering checks on all those selling or buying a property. Whilst we retain responsibility for ensuring checks and any ongoing monitoring are carried out correctly, the initial checks are carried out on our behalf by Lifetime Legal who will contact you once you have agreed to instruct us in your sale or had an offer accepted on a property you wish to buy. The cost of these checks is £45 (incl. VAT), which covers the cost of obtaining relevant data and any manual checks and monitoring which might be required. This fee will need to be paid by you in advance of us publishing your property (in the case of a vendor) or issuing a memorandum of sale (in the case of a buyer), directly to Lifetime Legal, and is non-refundable
Property Details


Contact the agent directly or complete the form below to enquire about this property.
Book a Viewing
About the Agent

Ellie Pike
Hi, I’m Ellie! I’ve been an estate agent since 2012, and after years of working to other people’s ways of doing things, in 2025 I decided to take the leap and join Agent MXM to do it my own way, with honesty and a whole lot of care. I live…
More Properties by Ellie Pike
Brandon Avenue, Heald Green
3 Bed Semi Detached in Heald Green

Property Managed By:
Ellie Pike
Woodstock Avenue, Cheadle Hulme
3 Bed terraced in Cheadle Hulme

Property Managed By:
Ellie Pike
Bridle Court, Bridle Road, Woodford
2 Bed apartment in Woodford

Property Managed By:
Ellie Pike




